메뉴

숙박시설안내 : 대천수련원(상운관)

기준인원
5인
최대인원
8인
면적
18평 / 20평
총 실수
총 10실

사용요금

비수기(주중)
60,000원
난방기(12~3월)
100,000원
비수기(주말,휴일)
100,000원
성수기(7월15일~8월 15일)
140,000원

평면도 보기

닫기

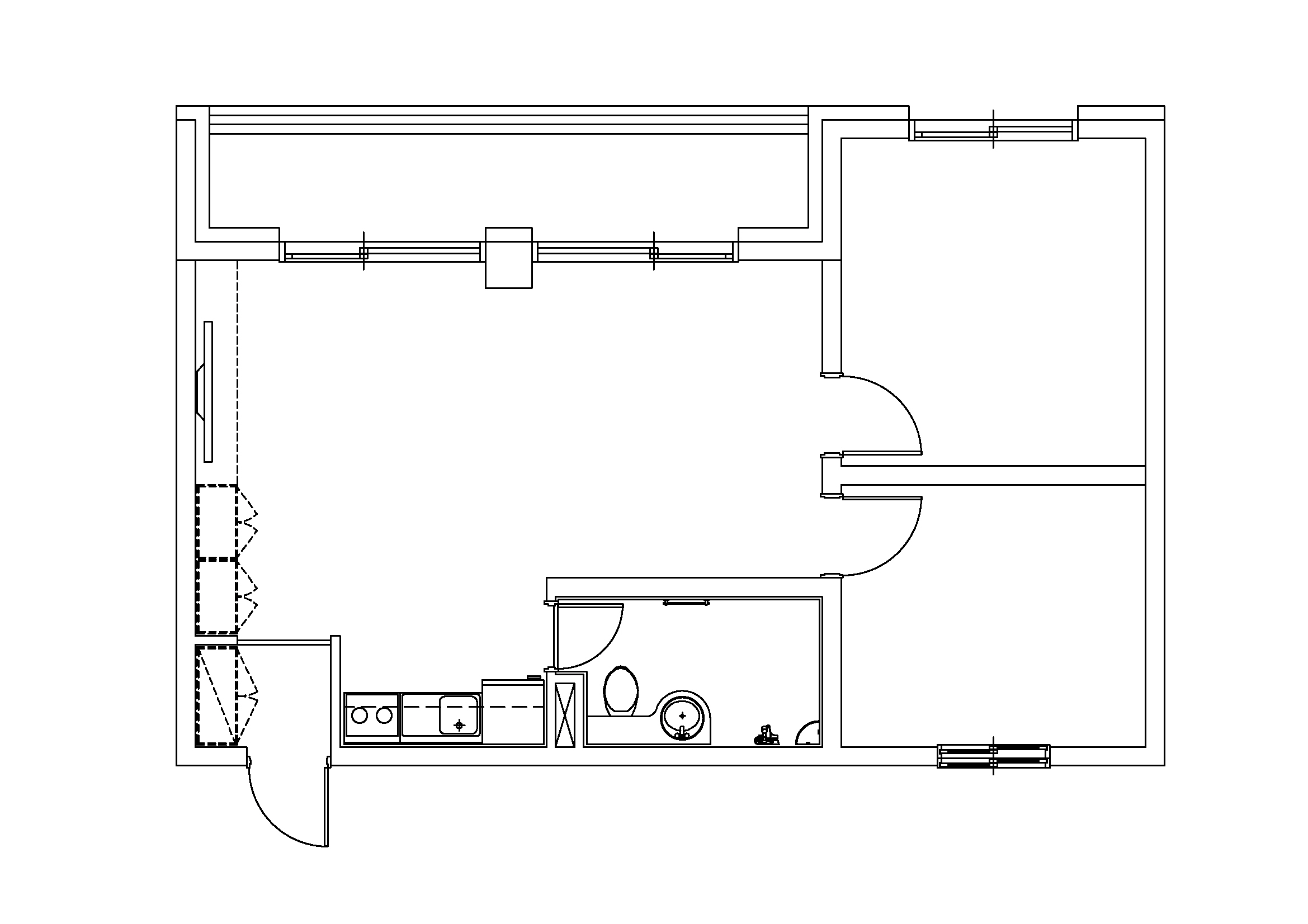
숙박시설안내

A타입(바다전망-다락방있음-8실) : 대천수련원(상운관) 5~8인실 평면도

B타입(산 전망-다락방없음-2실) : 대천수련원(상운관) 5~8인실 평면도

닫기